VENDITA APPARTAMENTO - FABBRICOTTI LIVORNO

                                                         
Fabbricotti
codice riferimento: Rif.4523

  Condividi   Condividi

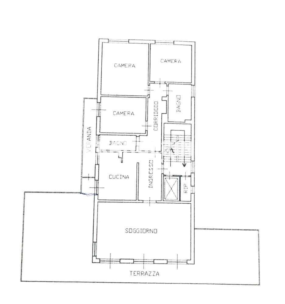
Rif. 4523 FABBRICOTTI CON TERRAZZA ABITABILE In condominio anni '70 dotato di ascensore, con lavori di straordinaria manutenzione recentemente eseguiti, appartamento di ampia metratura composto da salone doppio con accesso alla terrazza, cucina abitabile con ampio balcone verandato uso lavanderia, 3 CAMERE da letto di cui una camera matrimoniale, una camera media, ed una camera singola/studio, doppi servizi, ripostiglio sul vano scale di proprietà. POSTO AUTO a rotazione, per dieci mesi all'anno. (classe F) La richiesta è di euro 305.000




2 bagni, 3 o più camere, Ascensore, Cucina, Posto auto, Salone doppio, Termocentrale, Terrazza abitabile.
 
 
Piano: 1/5
Superficie: 130 mq
Classe: F
Condominio: € 275,00
Prezzo: € 305.000,00


Torna alla ricerca Richiedi informazioni