VENDITA APPARTAMENTO - CENTRO LIVORNO

               
Centro
codice riferimento: Rif.4521

  Condividi   Condividi

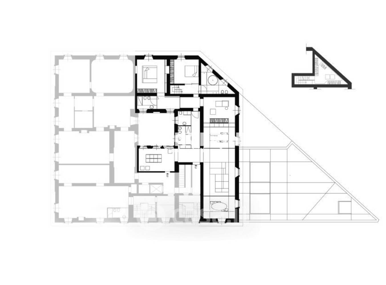
RIF. 4521 CAIROLI CON TERRAZZA In prestigioso palazzo d’epoca completamente restaurato e dotato di ascensore, proponiamo in vendita un elegante immobile di rappresentanza di circa 300 mq, completamente da ristrutturare situato al secondo piano e impreziosito da una splendida terrazza a livello. La proprietà si compone di un ampio ingresso di rappresentanza, salone triplo con accesso diretto alla meravigliosa terrazza, cucina abitabile, 3 CAMERE da letto, 3 bagni, tutti finestrati e ripostiglio con zona lavanderia. Le altezze interne consentono la possibilità di realizzare soppalchi in più ambienti. Attualmente l’immobile è accatastato come ufficio, ma risulta facilmente convertibile in civile abitazione, rendendolo ideale sia come residenza di pregio sia come sede professionale di alto livello.Presso i nostri uffici sono disponibili tavole progettuali e rendering realizzati da professionisti del settore.Classe energetica: in fase di definizione. La richiesta è di euro 320.000




2 o più bagni, 3 o più camere, Ascensore, Cucina, Da ristrutturare, Piscina, Sala, Studio, Terrazza abitabile.
 
 
Piano: SECONDO
Superficie: 276 mq
Classe: G
Condominio: € 100,00
Prezzo: € 320.000,00


Torna alla ricerca Richiedi informazioni