VENDITA INDIPENDENTI - REDI - CALZABIGI - MAMELI LIVORNO

                                                                                     
Redi - Calzabigi - Mameli
codice riferimento: Rif.4515

  Condividi   Condividi

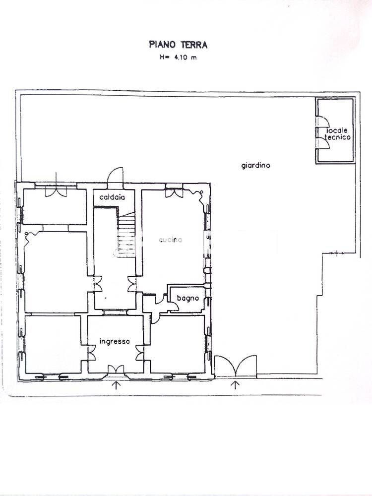
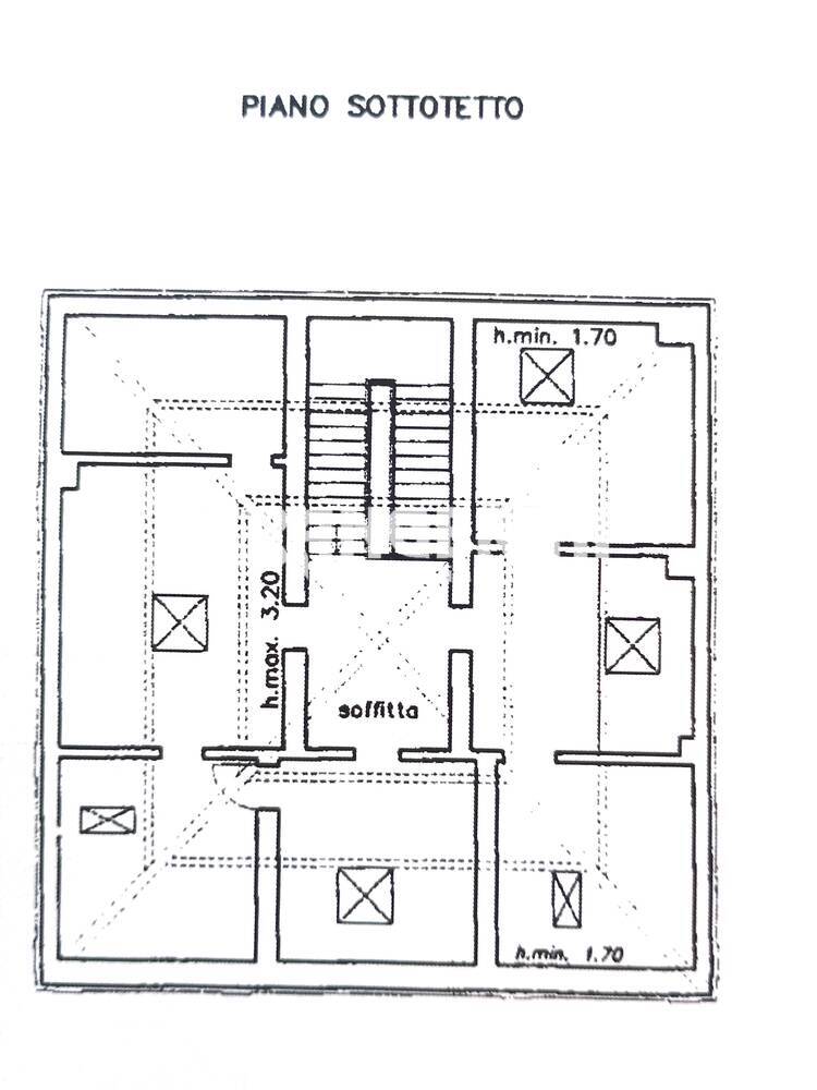
Rif. 4515 ADIACENZE VIA DELLE GRAZIE - VILLA D'EPOCA INDIPENDENTE CON GIARDINO E GARAGE ESCLUSIVA CONDIVISA- Nel cuore più autentico di Livorno, in una posizione rara e riservata dove la vivacità urbana lascia spazio alla quiete residenziale, proponiamo questa villa indipendente di grande charme. Una residenza di pregio che esprime equilibrio perfetto tra eleganza senza tempo, comfort moderno e calore familiare.Varcata la soglia, l’ingresso accoglie con discrezione e raffinatezza, introducendo a spazi ampi e luminosi, studiati per offrire funzionalità e qualità della vita. Al piano terra si trova un salone, ampio e rappresentativo, è ideale per ricevere e vivere momenti di convivialità in un’atmosfera sofisticata. Una grande cucina abitabile di circa 50mq, fulcro della casa, invita alla condivisione e alla quotidianità più autentica. Completano il piano terreno due ampie camere luminose e un bagno finestrato, perfettamente inseriti in un layout armonioso. Al primo piano troviamo la zona notte ospita quattro camere da letto, ognuna con carattere e personalità, pensate per garantire privacy e comfort assoluti. Due bagni servono il piano, di cui una sala da bagno privata nella camera padronale: un ambiente intimo e raffinato, concepito come un vero rifugio di benessere. Al piano secondo troviamo una splendida mansarda con alti soffitti e travi a vista, ariosa e di grande versatilità. Questo ambiente rappresenta uno spazio di rara suggestione, ideale come studio, area relax, zona creativa, area fitness o ulteriore suite. Un ambiente che invita all’ispirazione e alla libertà progettuale. La villa ha un bellissimo giardino privato, curato e riservato, si sviluppa su due lati della proprietà e offre un’oasi verde di assoluta tranquillità nel cuore della città.La resede pavimentata è perfetta per pranzi all’aperto, ricevimenti e momenti conviviali in un contesto elegante e protetto. La villa dispone inoltre di accesso carrabile e pedonale, parcheggio interno e una dependance multiuso, ideale come spazio ospiti, studio o area di servizio oltre ad un grande GARAGE. Trattativa riservata




2 o più bagni, 3 o più camere, Cantina, Cucina, Garage, Giardino, Posto auto, Sala, Salone doppio, Studio, Termoautonomo, Terrazza abitabile, Ultimo piano.
 
 
Piano: t/1
Superficie: 389 mq
Classe: G
Prezzo: Trattativa riservata


Torna alla ricerca Richiedi informazioni