VENDITA ATTIVITÀ COMMERCIALE - CENTRO LIVORNO

                           
Centro
codice riferimento: Rif.4385

  Condividi   Condividi

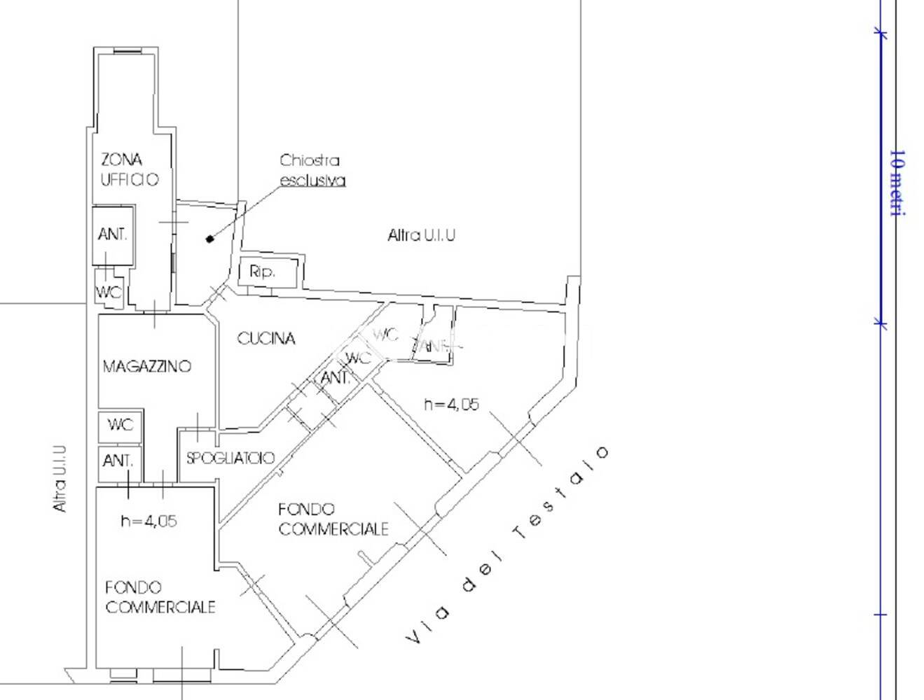
RIF. 4385 ZONA LARDAREL Proponiamo fondo commerciale di mq 180 con chiostra esclusiva. Il fondo e' in buone condizioni ed e' composto da 2 ampi saloni,cucina con canna fumaria,locale adibito ad uso spogliatoio,magazzino,bagno e soppalco adibito ad uso ufficio.Classe GLa richiesta e' di euro 145.000 trattabili




 
 
Piano: TERRA
Superficie: 180 mq
Classe: G
Prezzo: € 145.000,00


Torna alla ricerca Richiedi informazioni